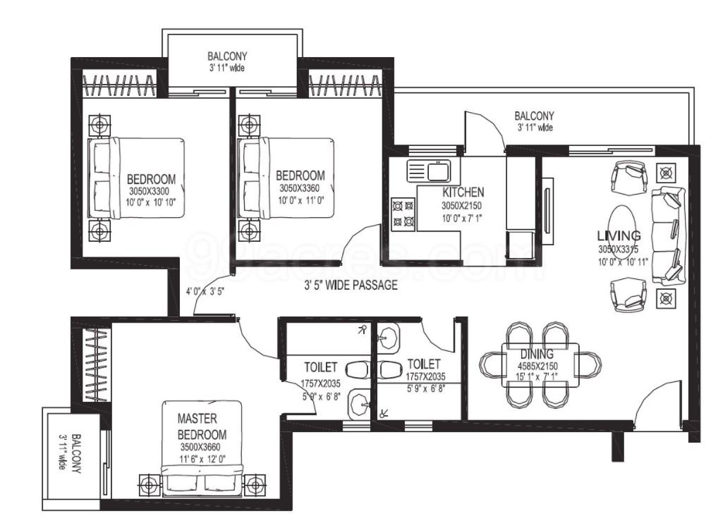
DLF Capital Greens is located at Shivaji Marg, Moti Nagar in West Delhi. With close proximity from Metro Stations, highways, reputed schools, market place, malls, and commercial developments make it desirable for the luxury home seekers and real estate investors. A place where you have the liberty to choose from 2, 3 and 4 BHK Apartments which will range between 1200 – 3105 Sq. Ft. Each room is entitled to the modern and contemporary design and balcony connected with every room to ensure proper natural sunlight and air. DLF Capital Greens is taking the prosperous heritage ahead with contemporary and lavish apartments and building design. Surrounded by a healthy & green neighborhood, this residential community delivers the residences that are eco-friendly and handy. With 23 towers on 33 acres, DLF Capital Greens Moti Nagar divided into 3 phases, focus it’s centered at elite buyers and investors who’re looking a great buy in the Capitals City of India. This residential community has luxury apartments with modern comforts and decorations. is located in the core center of Moti Nagar, Shivaji Marg and the most eminent project to give you the wings of living a luxury life. The project is surrounded adjacent to the 100 acres of green maintained by DDA. An abundance of green and recreational spaces within the community is originated to give you the utmost luxurious homes in Delhi.


For more Properties : dlf midtown moti nagar
Compare listings
Compare